fr
Se connecter
Se connecter
Saint-Priest (69800)

154,43 m²

LOCAL PROFESSIONNEL / COMMERCIAL À LOUER – CENTRE DE SAINT-PRIEST

2 300 € / mois HT - HC*
Ref : LCMARECHAL
Découvrir le bien

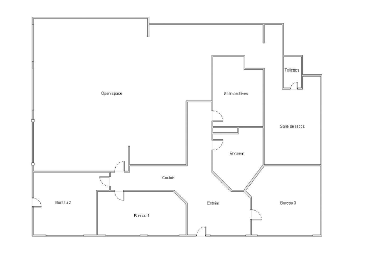
Situé en plein centre de Saint-Priest, ce local professionnel ou commercial en rez-de-chaussée développe une surface totale de 154 m². Il bénéficie d’un emplacement central, à proximité immédiate des commodités et des transports, tout en offrant un environnement de travail calme, sans vitrine sur rue.

Le local se compose d’un hall d’entrée, de trois bureaux indépendants, d’un vaste open space de 74 m², d’une salle d’archives, d’une réserve, d’une salle de repos ainsi que d’un WC. L’agencement est fonctionnel et permet d’accueillir aussi bien une activité tertiaire qu’une profession libérale ou une activité commerciale ne nécessitant pas de visibilité en façade.

Le chauffage est individuel électrique. La taxe foncière est à la charge du locataire.

Le local est libre de suite et peut être proposé dans le cadre d’un bail commercial ou d’un bail professionnel.

Pour tout renseignement complémentaire ou pour organiser une visite, nous contacter.

TRAD_ZEPHYR_Caracteristique TRAD_ZEPHYR_Valeurs
Type de transac Bureaux
Code postal 69800
Superficie (m²) 154.43
TRAD_ZEPHYR_Caracteristique TRAD_ZEPHYR_Valeurs
Mode de chauffage Electrique
Type de chauffage Convecteur
Format de chauffage Individuel
Année de construction 1993
TRAD_ZEPHYR_Caracteristique TRAD_ZEPHYR_Valeurs
Copropriété OUI
TRAD_ZEPHYR_Caracteristique TRAD_ZEPHYR_Valeurs
Loyer HT 2 300 € / mois
Honoraires HT charge locataire 2 300 €
Dont état des lieux Non renseigné
Dépot de garantie Non renseigné
Charges locatives HT (provision donnant lieu à régularisation annuelle) 110 €
DPE GES
  • Commerces et santé
  • Loisirs
  • Ecoles
  • Transports
  • Pratique
Contacter pour ce bien
L'agence
Téléphone 04.78.20.61.63
Adresse
23 RUE DU DOCTEUR GALLAVARDIN 69800 Saint-Priest

* Champ obligatoire

Les informations recueillies sur ce formulaire sont enregistrées dans un fichier informatisé par La Boite Immo agissant comme Sous-traitant du traitement pour la gestion de la clientèle/prospects de l'Agence / du Réseau qui reste Responsable du Traitement de vos Données personnelles. La base légale du traitement repose sur l'intérêt légitime de l'Agence / du Réseau. Elles sont conservées jusqu'à demande de suppression et sont destinées à l'Agence / au Réseau. Conformément à la loi « informatique et libertés », vous disposez des droits d’accès, de rectification, d’effacement, d’opposition, de limitation et de portabilité de vos données. Vous pouvez retirer votre consentement à tout moment en contactant directement l’Agence / Le Réseau. Consultez le site https://cnil.fr/fr pour plus d’informations sur vos droits. Si vous estimez, après avoir contacté l'Agence / le Réseau, que vos droits « Informatique et Libertés » ne sont pas respectés, vous pouvez adresser une réclamation à la CNIL. Nous vous informons de l’existence de la liste d'opposition au démarchage téléphonique « Bloctel », sur laquelle vous pouvez vous inscrire ici : https://www.bloctel.gouv.fr Dans le cadre de la protection des Données personnelles, nous vous invitons à ne pas inscrire de Données sensibles dans le champ de saisie libre.
Ce site est protégé par reCAPTCHA, les Politiques de Confidentialité et les Conditions d'Utilisation de Google s'appliquent.

Découvrir nos outils