fr
Se connecter
Se connecter
Chaponnay (69970)

Terrain à Bâtir - Lotissement l'Horizon

365 000 €
Ref : 395 6
Découvrir le bien

Terrain viabilisé - 800m² - Vue imprenable sur Lyon

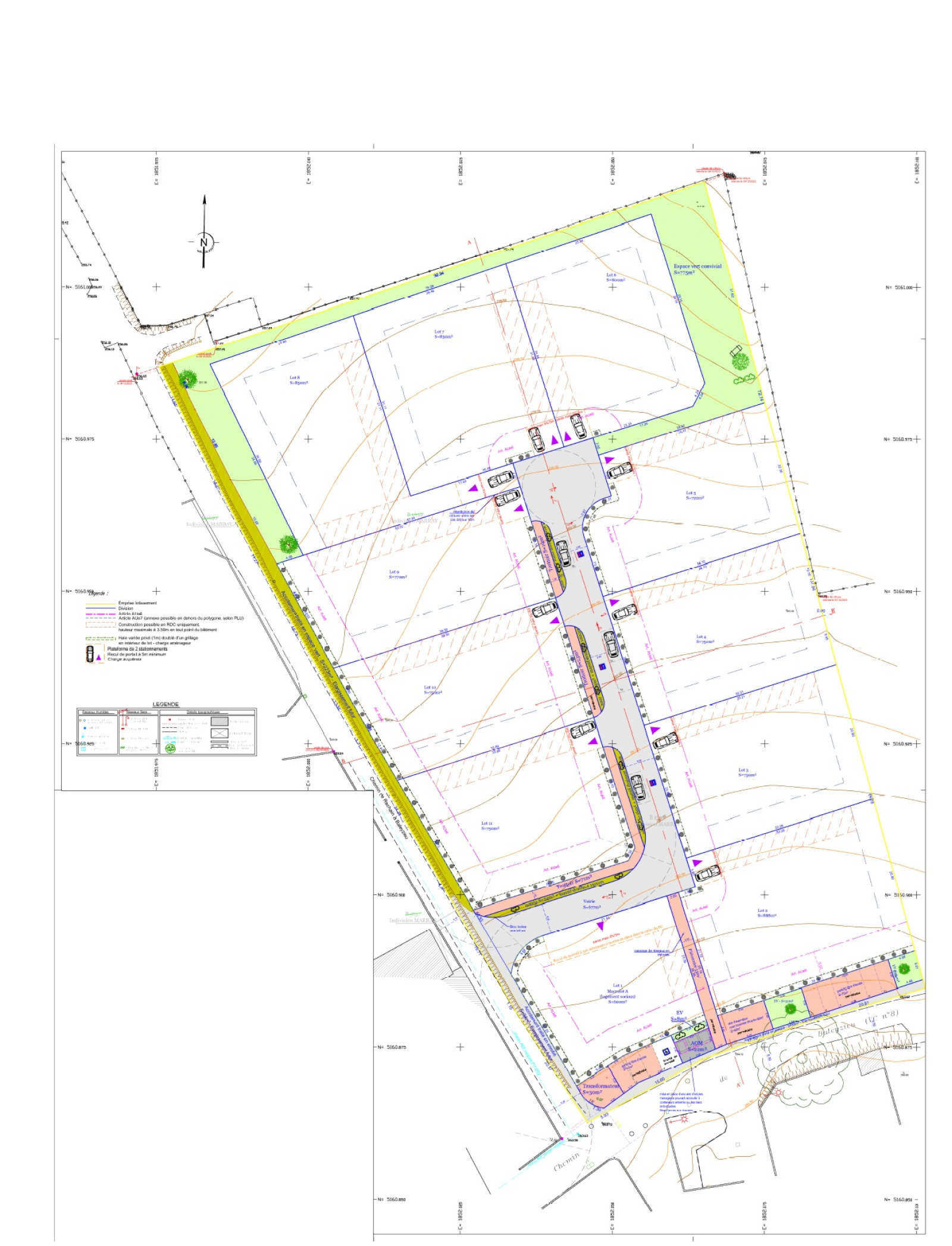
L'agence CID vous propose en exclusivité des terrains à bâtir viabilisés dans un nouveau lotissement de 11 lots sur les hauteurs de Chaponnay, avec une vue dégagée sur Lyon.


Nous vous proposons la parcelle n° 6 de 800m² , terrain avec la plus belle vue du lotissement!


Informations sur le bien :

- Superficie de 800m²

- Libre constructeur

- Zonage du PLU : zone AUe

- Surface plancher maximum de 250m² 

- 50% de la surface du lot devra ĂŞtre en espace vert dont 20 % en pleine terre

  - Non soumis au DPE

Les informations sur les risques auxquels ce bien est exposé sont disponibles sur le site Géorisques : www.georisques.gouv.fr

Nous pouvons vous mettre en relation avec nos constructeurs partenaires, qui pourront vous proposer des projets sur ce lotissement.


Pour tous renseignements n'hésitez pas à contacter votre conseillère : Violaine VENDEVILLE 07.69.96.03.38

TRAD_ZEPHYR_Caracteristique TRAD_ZEPHYR_Valeurs
Code postal 69970
surface terrain 800 m²
Terrain constructible OUI
TRAD_ZEPHYR_Caracteristique TRAD_ZEPHYR_Valeurs
Terrain Viabilisé OUI
TRAD_ZEPHYR_Caracteristique TRAD_ZEPHYR_Valeurs
Copropriété NON
TRAD_ZEPHYR_Caracteristique TRAD_ZEPHYR_Valeurs
Prix de vente 365 000 €
Les honoraires d'agence seront intĂ©gralement Ă  la charge du vendeur  
  • Commerces et santĂ©
  • Loisirs
  • Ecoles
  • Transports
  • Pratique
Contacter pour ce bien
L'agence
Téléphone 04.78.20.61.63
Adresse
23 RUE DU DOCTEUR GALLAVARDIN 69800 Saint-Priest

* Champ obligatoire

Les informations recueillies sur ce formulaire sont enregistrées dans un fichier informatisé par La Boite Immo agissant comme Sous-traitant du traitement pour la gestion de la clientèle/prospects de l'Agence / du Réseau qui reste Responsable du Traitement de vos Données personnelles. La base légale du traitement repose sur l'intérêt légitime de l'Agence / du Réseau. Elles sont conservées jusqu'à demande de suppression et sont destinées à l'Agence / au Réseau. Conformément à la loi « informatique et libertés », vous disposez des droits d’accès, de rectification, d’effacement, d’opposition, de limitation et de portabilité de vos données. Vous pouvez retirer votre consentement à tout moment en contactant directement l’Agence / Le Réseau. Consultez le site https://cnil.fr/fr pour plus d’informations sur vos droits. Si vous estimez, après avoir contacté l'Agence / le Réseau, que vos droits « Informatique et Libertés » ne sont pas respectés, vous pouvez adresser une réclamation à la CNIL. Nous vous informons de l’existence de la liste d'opposition au démarchage téléphonique « Bloctel », sur laquelle vous pouvez vous inscrire ici : https://www.bloctel.gouv.fr Dans le cadre de la protection des Données personnelles, nous vous invitons à ne pas inscrire de Données sensibles dans le champ de saisie libre.
Ce site est protégé par reCAPTCHA, les Politiques de Confidentialité et les Conditions d'Utilisation de Google s'appliquent.

Découvrir nos outils